
VermietungRobert-Bosch-Strasse 6

Lageplan Gebäude Robert-Bosch-Strasse 6
Nutzung
Das Gebäude zeichnet sich durch eine flexible Nutzung mit unterschiedlichen Bürokonzepten für etagenweise Vermietung aus. Die Aufteilung einzelner Stockwerke oder Teilvermietung ist möglich.
Bauweise: Massivbau, Stahlbaukonstruktion Dachbereich
Außenwände: Mauerwerk/Dämmputzfassade
Dach: Satteldach als Stahltragkonstruktion mit Metall-/Sandwich-/Eindeckung
Heizung: Erdgas
Ausstattung
Das Bürogebäude und die Testhalle haben eine moderne Ausstattung.
Die Elektroausstattung und -verteilung werden durch EDV-Bodentanks etc. optimiert.
Alle Büros verfügen über viel Tageslicht, welches sich über den außenliegenden Sonnenschutz steuern läßt.
Die lichte Höhe der Büros ist gut dimensioniert und die Barrierefreiheit durch Personenaufzug und Behinderten-WC gewährleistet.
Zufahrt über Adolf-Safft-Strasse und Heinrich-Landerer-Strasse. Das Objekt verfügt über 26 befestigte Stellplätze und zusätzliche Stellplätze innerhalb des Geländes.
Hauptansicht Robert-Bosch-Straße
Flächen
Gesamtfläche Büro/Verwaltungsgebäude: 1.409 m²
Freie Büroflächen
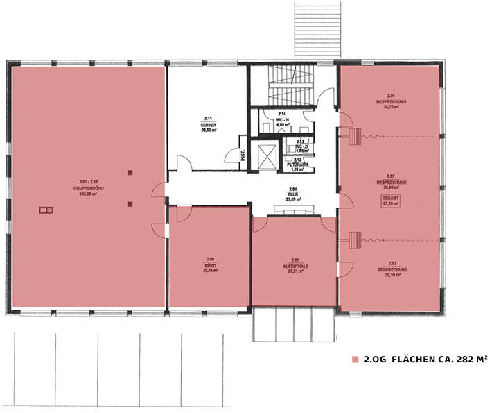
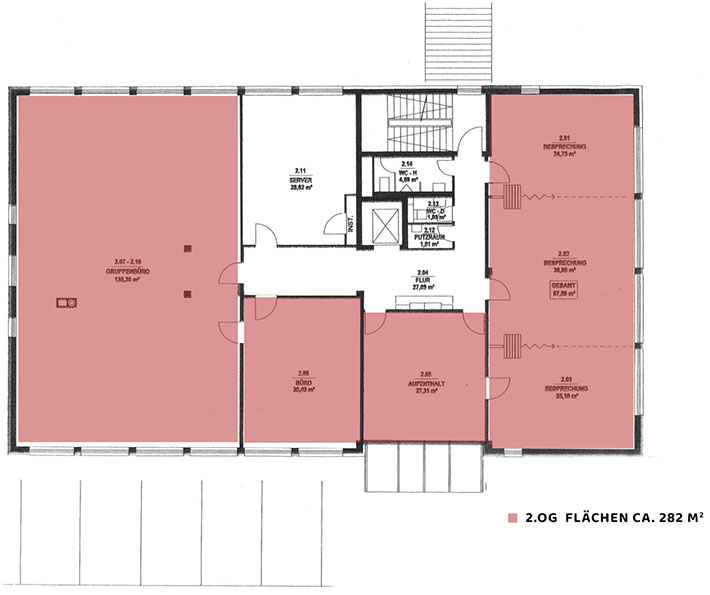
2.OG: Büroräume ca. 282 m²
Ausstattung Bürogebäude
- Variable Grundrisslösungen
- Moderne Ausstattung
- Teeküchen
- Personenaufzug
- Behinderten WC
- Dusche
- Kunststoff Isolierfenster
- Elektrische Außenjalousien
- Klimatisierung in Teilbereichen
- Brandmeldeanlage
- Photovoltaikanlage
Mietzins
Mietkosten betragen 10,30€/ m²
Betriebskostenvorauszahlung: 3,00€/m²
Stellplatz: 20,00€/Monat
VERFÜGBARKEIT: Auf Anfrage.
Information! Im 2. OG sind momentan 282 m² zu vermieten
Kontakt: Sabine Wittlinger Tel: +49 7161 14056, E-Mail: swittlinger(at)goeppingen.de
VERFÜGBARKEIT: Auf Anfrage.
Information! Im 2. OG sind momentan 282 m² zu vermieten
Kontakt: Sabine Wittlinger Tel: +49 7161 14056, E-Mail: swittlinger(at)goeppingen.de




